Не упусти свой шанс! Последние акции от застройщиков  ▼

Продается 3-комнатная квартира, Полярная ул., 3/1

25 500 000 Р

Полярная ул.3/1

Дата публикации: 14 августа 2025

Дата обновления: 27 февраля 2026

Телефон: 
Показать телефон

+7 (909) 906-62-02

Агентство:  АН Владис

Название: ЖК "Полярная 25"

От застройщика: 0 квартир в продаже

Этаж: 4 / 18

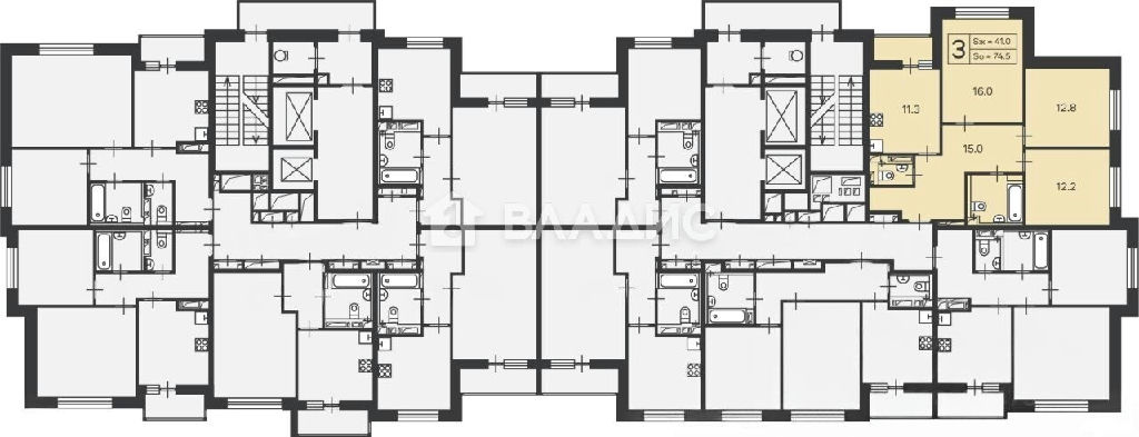
Общая: 74,5 м2

Жилая: 41 м2

Кухня: 11,3 м2

Комнаты: не указано

Балкон/лоджия: не указано

Лифт: не указано

Окна: окна во двор и на улицу

Санузел: совмещенный

Мусоропровод: не указано

Состояние квартиры: требуется ремонт

Тип дома: монолитный

Год постройки: 2025

Территория: не указано

Парковка: не указано

Статус сделки: продажа

Сделка: прямая продажа

Собственность: не указано

Основание права собственности: не указано

Описание

Код объекта: 1728674.Идеальное предложение для семьи: просторная трёхкомнатная квартира в ЖК "Полярная, 3/1".Квартира расположена в районе Южное Медведково на северо-востоке столицы. Это комфортный и зеленый район с развитой социальной и транспортной инфраструктурой. Близость к основным магистралям и станциям метро обеспечивает быстрое перемещение по городу. Район окружают реки Яуза и Чермянка, вдоль набережных которых расположился благоустроенный парк "Яуза". Описание объекта: - Год постройки: 2025.- Материал постройки: монолитный.- Общая площадь: 74,5 кв. м.- Жилая площадь: 41 кв. м.- Площадь кухни: 11,3 кв. м.- Высота потолков: 2,8 м.- Этаж: 4 из 18.- Окна выходят на улицу и во двор.- Два раздельных санузла: один раздельный, один совмещённый.- Лоджия.- Ремонт: white box, готовый к финишной отделке по вашему вкусу. Возведены и отштукатурены стены, стяжка на полу, разводка электричества и коммуникаций. Преимущества: - Просторная и светлая квартира с изолированными комнатами идеально подойдёт для семьи с детьми.- Удобное расположение с развитой инфраструктурой: школы, детские сады, магазины. Во дворе размещаются оборудованные детские и спортивные площадки, а также площадка для отдыха. Ландшафтный дизайн территории представлен деревьями, красивоцветущими кустарниками, многолетними цветниками и газонами.-Подземный паркинг Позвоните нам прямо сейчас, чтобы узнать больше и записаться на просмотр! Мы гарантируем безопасную сделку и юридическую поддержку нашим клиентам. Поможем одобрить ипотеку с сниженной ставкой.

Квартира на карте

ПанорамыКарта
Спецпредложения
Добавить объявление